Перейти к контенту
Подбор и сравнение проектов домов от застройщиков Московской области
Подборщик домов
Калькулятор сметы
Калькулятор площади
Форум
Блог
Главная
›
Каталог проектов
›
Проект R-370-1K
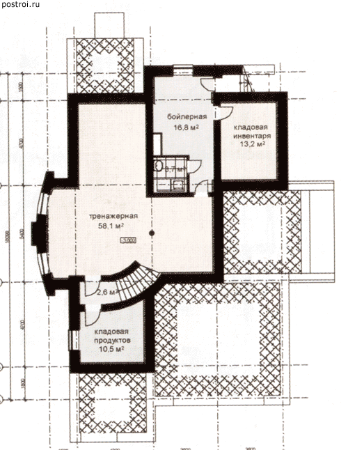
Проект R-370-1K
Застройщик: Юникс-Строй
370.0 м²
1 / 4
🏠
370.0 м²
📐
3 этаж
🧱
Кирпич
Похожие проекты
Похожие по цене
Похожие по площади
Проект D-179-1D
2 этаж
от 30 345 000 ₽
→
Проект U-370-1K
2 этаж
от 30 358 860 ₽
→
Дом по проекту «ЗС 25-16» - Золотое Сечение
4 спальн. · 3 санузл.
от 30 375 000 ₽
→
Проект «Montpellier»
от 18 500 000 ₽
→
ПД - 370 - Строительство домов из Каркаса, СИП, Бруса под ключ
6 спальн. · 3 санузл. · 2 этаж
от 7 930 000 ₽
→
Дом из рубленного бревна «Зевс» | ЭкоТех
4 спальн. · 3 санузл. · 2 этаж
от 11 500 740 ₽
→
На сайт застройщика