Перейти к контенту
Подбор и сравнение проектов домов от застройщиков Московской области
Подборщик домов
Калькулятор сметы
Калькулятор площади
Форум
Блог
Главная
›
Каталог проектов
›
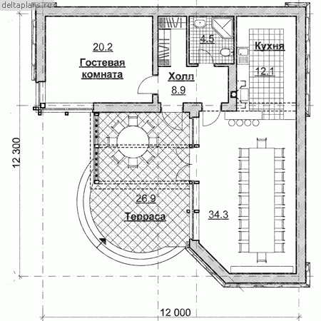
Проект S-094-1K
Проект S-094-1K
Застройщик: Юникс-Строй
94.2 м²
1 / 2
🏠
94.2 м²
📐
1 этаж
🧱
Кирпич
Похожие проекты
Похожие по цене
Похожие по площади
Проект К-115 13 на 15, площадью 194 за 7 724 250 руб
3 спальн. · 1 этаж
от 7 724 250 ₽
→
Кирпичный дом С-148 К «Фроджи»
3 спальн. · 1 санузл. · 3 этаж
от 7 722 000 ₽
→
Проект T-110-1P
2 этаж
от 7 721 000 ₽
→
Семейный (9x11.3)
2 спальн. · 1 санузл. · 1 этаж
от 5 877 000 ₽
→
Феникс 2
2 спальн. · 2 санузл. · 2 этаж
от 2 799 800 ₽
→
Проект одноэтажного дома "Ратмир" из бревна
2 спальн. · 2 этаж
от 4 607 397 ₽
→
На сайт застройщика