Перейти к контенту
Подбор и сравнение проектов домов от застройщиков Московской области
Подборщик домов
Калькулятор сметы
Калькулятор площади
Форум
Блог
Главная
›
Каталог проектов
›
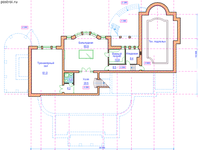
Проект S-1281-1K
Проект S-1281-1K
Застройщик: Юникс-Строй
1281.0 м²
1 / 5
🏠
1281.0 м²
📐
3 этаж
🧱
Кирпич
Похожие проекты
Похожие по цене
Похожие по площади
Проект «Philadelphia»
5 спальн. · 6 санузл.
от 51 250 000 ₽
→
Проект «Philadelphia»
5 спальн. · 6 санузл.
от 51 250 000 ₽
→
Проект «Philadelphia»
5 спальн. · 6 санузл. · 2 этаж
от 51 250 000 ₽
→
Проект «Byron»
8 спальн. · 9 санузл. · 2 этаж
от 64 000 000 ₽
→
Современная резиденция «Байрон» плоской крышей
8 спальн. · 9 санузл. · 2 этаж
от 76 824 000 ₽
→
Проект дома «Marion»
6 спальн. · 7 санузл. · 2 этаж
от 77 100 000 ₽
→
На сайт застройщика