Перейти к контенту
Подбор и сравнение проектов домов от застройщиков Московской области
Подборщик домов
Калькулятор сметы
Калькулятор площади
Форум
Блог
Главная
›
Каталог проектов
›
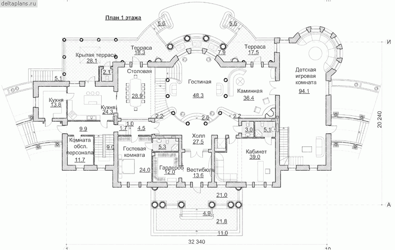
Проект S-1562-1K
Проект S-1562-1K
Застройщик: Юникс-Строй
1562.3 м²
1 / 4
🏠
1562.3 м²
📐
3 этаж
🧱
Кирпич
Похожие проекты
Похожие по цене
Похожие по площади
Дом в классическом стиле «Бельфор»
7 спальн. · 7 санузл. · 2 этаж
от 62 556 000 ₽
→
Проект R-761-1K
3 этаж
от 62 320 000 ₽
→
Проект S-768-1K
3 этаж
от 63 000 600 ₽
→
Проект «Parkfield»
6 спальн. · 9 санузл.
от 78 340 000 ₽
→
Большой коттедж с беседкой и прудом с кострищем «Паркфилд»
6 спальн. · 9 санузл. · 2 этаж
от 94 008 000 ₽
→
Проект S-1547-1K
3 этаж
от 61 880 000 ₽
→
На сайт застройщика