Перейти к контенту
Подбор и сравнение проектов домов от застройщиков Московской области
Подборщик домов
Калькулятор сметы
Калькулятор площади
Форум
Блог
Главная
›
Каталог проектов
›
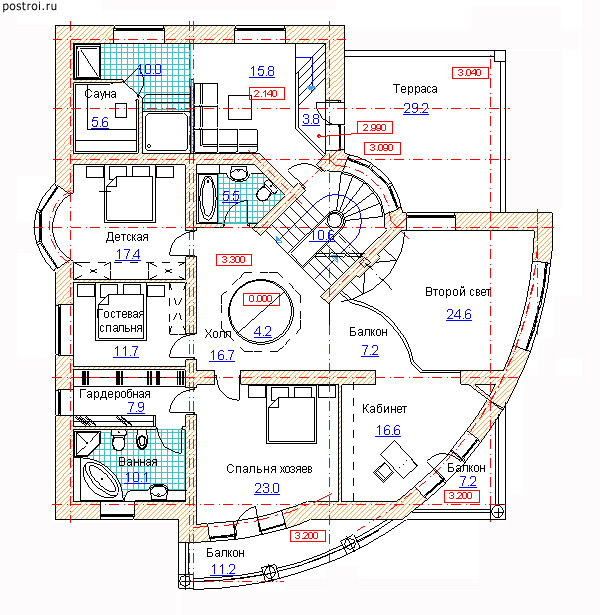
Проект S-449-1K
Проект S-449-1K
Застройщик: Юникс-Строй
556.6 м²
1 / 5
🏠
556.6 м²
📐
3 этаж
🧱
Кирпич
Похожие проекты
Похожие по цене
Похожие по площади
Проект дома «Reedley»
8 спальн. · 10 санузл.
от 45 725 000 ₽
→
Проект дома «Reedley»
8 спальн. · 10 санузл.
от 45 725 000 ₽
→
Проект M-558-1K
6 санузл. · 2 этаж
от 45 756 000 ₽
→
Проект трехэтажного каркасного дома "Рудные просторы"
10 спальн. · 3 этаж
от 41 563 500 ₽
→
Проект «Gothenburg»
4 спальн. · 4 санузл. · 1 этаж
от 27 800 000 ₽
→
Проект «Gothenburg»
4 спальн. · 4 санузл. · 1 этаж
от 27 800 000 ₽
→
На сайт застройщика