Перейти к контенту
Подбор и сравнение проектов домов от застройщиков Московской области
Подборщик домов
Калькулятор сметы
Калькулятор площади
Форум
Блог
Главная
›
Каталог проектов
›
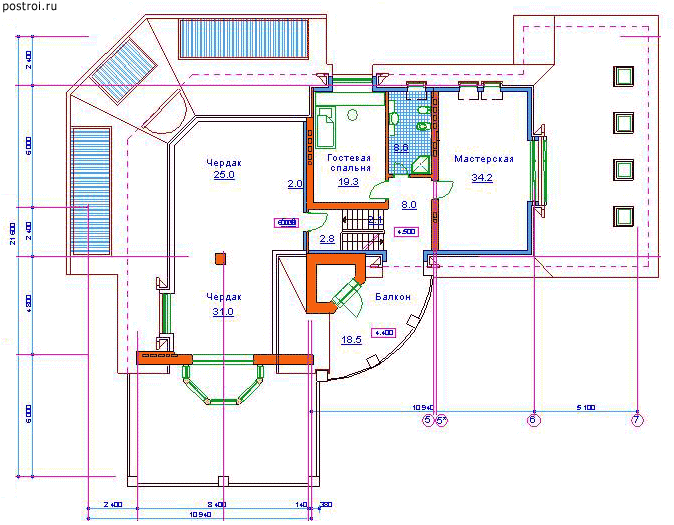
Проект S-569-1K
Проект S-569-1K
Застройщик: Юникс-Строй
569.1 м²
1 / 4
🏠
569.1 м²
📐
3 этаж
🧱
Кирпич
Похожие проекты
Похожие по цене
Похожие по площади
Резиденция «Биркхилл» с пристроенным SPA домиком
7 спальн. · 7 санузл. · 2 этаж
от 46 794 000 ₽
→
Проект дома «Richland»
5 спальн. · 7 санузл.
от 46 518 000 ₽
→
Проект дома «Richland»
5 спальн. · 7 санузл.
от 46 518 000 ₽
→
Проект «Dals»
2 этаж
от 28 600 000 ₽
→
Проект «Dals»
2 этаж
от 28 600 000 ₽
→
Двухэтажный дом в стиле Райта «Далс»
7 спальн. · 6 санузл. · 2 этаж
от 34 308 000 ₽
→
На сайт застройщика