Перейти к контенту
Подбор и сравнение проектов домов от застройщиков Московской области
Подборщик домов
Калькулятор сметы
Калькулятор площади
Форум
Блог
Главная
›
Каталог проектов
›
Проект S-665-1K
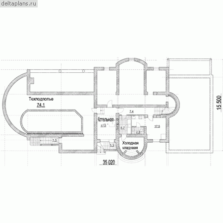
Проект S-665-1K
Застройщик: Юникс-Строй
665.9 м²
1 / 4
🏠
665.9 м²
📐
3 этаж
🧱
Кирпич
Похожие проекты
Похожие по цене
Похожие по площади
Двухэтажный дом с мансардой «Ноттингем»
7 спальн. · 7 санузл. · 2 этаж
от 54 618 000 ₽
→
Проект U-665-1K
3 этаж
от 54 507 860 ₽
→
Одноэтажный дом с патио в современном стиле «Девайн»
4 спальн. · 5 санузл. · 1 этаж
от 54 498 000 ₽
→
Проект U-665-1K
3 этаж
от 54 507 860 ₽
→
Проект G-668-1K
3 этаж
от 54 751 400 ₽
→
Проект S-670-1K
3 этаж
от 54 940 000 ₽
→
На сайт застройщика