Перейти к контенту
Подбор и сравнение проектов домов от застройщиков Московской области
Подборщик домов
Калькулятор сметы
Калькулятор площади
Форум
Блог
Главная
›
Каталог проектов
›
Проект S-846-1K
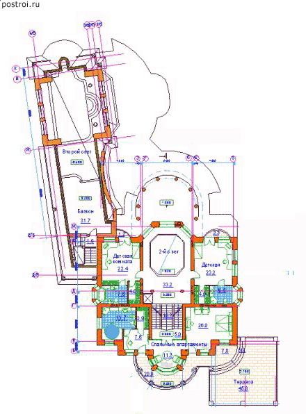
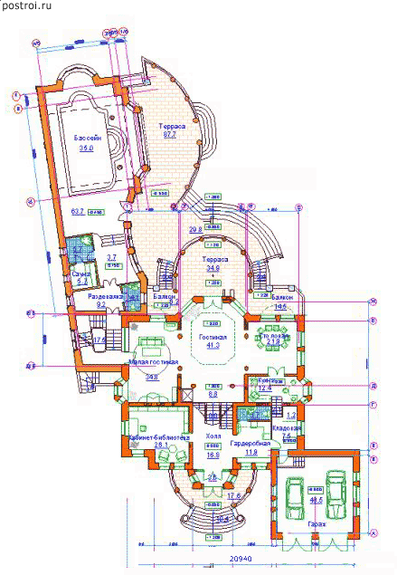
Проект S-846-1K
Застройщик: Юникс-Строй
846.4 м²
1 / 5
🏠
846.4 м²
📐
3 этаж
🧱
Кирпич
Похожие проекты
Похожие по цене
Похожие по площади
Проект «Freiburg»
6 спальн. · 9 санузл.
от 69 350 000 ₽
→
Проект «Freiburg»
6 спальн. · 9 санузл.
от 69 350 000 ₽
→
Проект «Florida»
6 спальн. · 9 санузл.
от 69 000 000 ₽
→
Проект дома «Trevose»
3 спальн. · 7 санузл. · 1 этаж
от 42 500 000 ₽
→
Одноэтажный коттедж в стиле Прерий «TREVOSE»
3 спальн. · 7 санузл. · 1 этаж
от 50 958 000 ₽
→
Проект R-852-1K
2 этаж
от 69 864 000 ₽
→
На сайт застройщика