Перейти к контенту
Подбор и сравнение проектов домов от застройщиков Московской области
Подборщик домов
Калькулятор сметы
Калькулятор площади
Форум
Блог
Главная
›
Каталог проектов
›
Проект T-097-2P
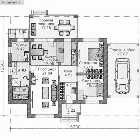
Проект T-097-2P
Застройщик: Юникс-Строй
97.9 м²
1 / 2
🏠
97.9 м²
📐
1 этаж
🧱
Пеноблок
Похожие проекты
Похожие по цене
Похожие по площади
Проект T-097-1P
1 этаж
от 6 853 000 ₽
→
Каскад 1 (10x12)
3 спальн. · 1 санузл. · 1 этаж
от 6 862 000 ₽
→
Проект двухэтажного каркасного дома "Эрик"
3 спальн. · 2 этаж
от 6 862 549 ₽
→
Проект T-097-1P
1 этаж
от 6 853 000 ₽
→
Соната 1
3 спальн. · 2 санузл. · 1 этаж
от 6 399 000 ₽
→
Соната 1
3 спальн. · 2 санузл. · 1 этаж
от 6 399 000 ₽
→
На сайт застройщика