Перейти к контенту
Подбор и сравнение проектов домов от застройщиков Московской области
Подборщик домов
Калькулятор сметы
Калькулятор площади
Форум
Блог
Главная
›
Каталог проектов
›
Проект T-118-1P
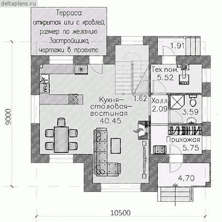
Проект T-118-1P
Застройщик: Юникс-Строй
118.5 м²
1 / 3
🏠
118.5 м²
📐
2 этаж
🧱
Пеноблок
Похожие проекты
Похожие по цене
Похожие по площади
Каркасный дом С-195 КР «Велюр»
4 спальн. · 2 санузл. · 4 этаж
от 8 297 000 ₽
→
Проект одноэтажного дома "Скандик-4" из бруса
3 спальн. · 2 этаж
от 8 298 785 ₽
→
Проект каркасного дома КП-160
1 этаж
от 8 300 000 ₽
→
Проект U-117-1K
1 этаж
от 9 715 360 ₽
→
Строительство каркасного дома 13х10 "Элегия" под ключ
4 спальн. · 2 санузл. · 1 этаж
от 5 594 000 ₽
→
Аллебро 120
3 спальн. · 1 этаж
от 6 156 403 ₽
→
На сайт застройщика