Перейти к контенту
Подбор и сравнение проектов домов от застройщиков Московской области
Подборщик домов
Калькулятор сметы
Калькулятор площади
Форум
Блог
Главная
›
Каталог проектов
›
Проект T-137-1P
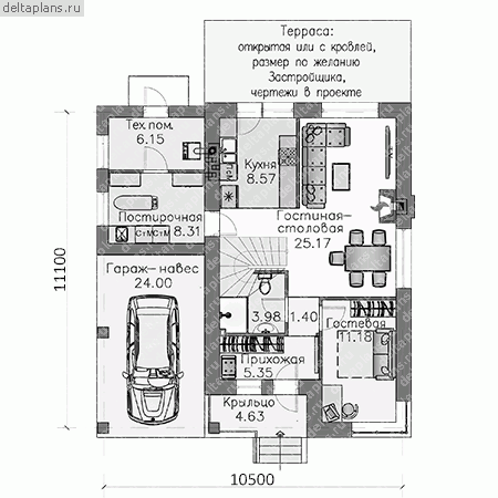
Проект T-137-1P
Застройщик: Юникс-Строй
137.5 м²
1 / 3
🏠
137.5 м²
📐
2 этаж
🧱
Пеноблок
Похожие проекты
Похожие по цене
Похожие по площади
Проект G-138-1P
3 этаж
от 9 625 000 ₽
→
Дома из керамических блоков Тетрис L под ключ
4 спальн. · 2 санузл. · 2 этаж
от 9 626 600 ₽
→
Проект двухэтажного коттеджа "Тутси" из газобетона
4 спальн. · 2 этаж
от 9 623 000 ₽
→
Проект G-138-1P
3 этаж
от 9 625 000 ₽
→
Проект H-138-1D
2 этаж
от 20 625 000 ₽
→
Проект U-137-1K
1 этаж
от 11 269 260 ₽
→
На сайт застройщика