Перейти к контенту
Подбор и сравнение проектов домов от застройщиков Московской области
Подборщик домов
Калькулятор сметы
Калькулятор площади
Форум
Блог
Главная
›
Каталог проектов
›
Проект T-163-1P
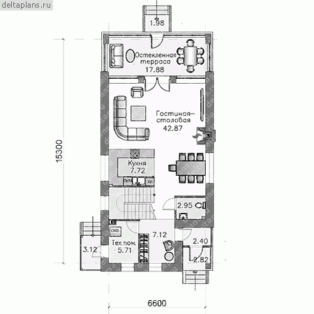
Проект T-163-1P
Застройщик: Юникс-Строй
168.6 м²
1 / 3
🏠
168.6 м²
📐
2 этаж
🧱
Пеноблок
Похожие проекты
Похожие по цене
Похожие по площади
Проект V-169-1P
3 этаж
от 11 799 900 ₽
→
Проект V-144-1K
3 этаж
от 11 799 800 ₽
→
Дом одноэтажный №378
1 этаж
от 11 799 650 ₽
→
Проект V-169-1P
3 этаж
от 11 799 900 ₽
→
Проект дома W-169-1P
2 этаж
от 11 806 900 ₽
→
Проект двухэтажного каркасного дома "Тефия3"
4 спальн. · 2 этаж
от 12 115 760 ₽
→
На сайт застройщика