Перейти к контенту
Подбор и сравнение проектов домов от застройщиков Московской области
Подборщик домов
Калькулятор сметы
Калькулятор площади
Форум
Блог
Главная
›
Каталог проектов
›
Проект T-232-1P
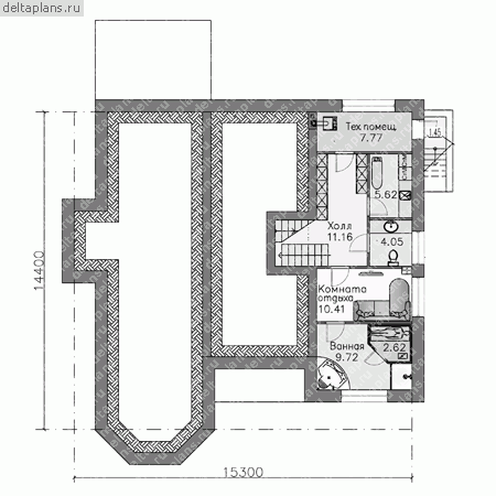
Проект T-232-1P
Застройщик: Юникс-Строй
233.36 м²
1 / 3
🏠
233.36 м²
📐
2 этаж
🧱
Пеноблок
Похожие проекты
Похожие по цене
Похожие по площади
Проект A-233-1P
2 этаж
от 16 341 500 ₽
→
Проект U-233-1P
2 этаж
от 16 324 000 ₽
→
Проект A-199-1K
2 этаж
от 16 323 740 ₽
→
Дом из газобетонных блоков С-234 ГБ «Ретрит»
4 спальн. · 2 санузл. · 2 этаж
от 9 606 000 ₽
→
Дом из керамических блоков С-234 КЕ «Ретрит»
4 спальн. · 2 санузл. · 2 этаж
от 9 606 000 ₽
→
Каркасный дом С-234 КР «Ретрит»
4 спальн. · 2 санузл. · 2 этаж
от 9 017 000 ₽
→
На сайт застройщика