Перейти к контенту
Подбор и сравнение проектов домов от застройщиков Московской области
Подборщик домов
Калькулятор сметы
Калькулятор площади
Форум
Блог
Главная
›
Каталог проектов
›
Проект T-288-1P
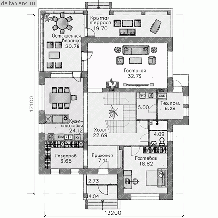
Проект T-288-1P
Застройщик: Юникс-Строй
288.93 м²
1 / 3
🏠
288.93 м²
📐
2 этаж
🧱
Пеноблок
Похожие проекты
Похожие по цене
Похожие по площади
Проект дома M-289-1P
3 этаж
от 20 230 000 ₽
→
Проект Y-160-1D
2 этаж
от 20 220 000 ₽
→
Проект одноэтажного дома "Боровское" из бруса
4 спальн. · 2 этаж
от 20 217 178 ₽
→
Проект дома «Венс»
5 спальн. · 2 этаж
от 12 837 000 ₽
→
Дом 5 спален второй свет №347
2 этаж
от 11 919 700 ₽
→
Проект 5 спален второй свет №347
2 этаж
от 11 919 700 ₽
→
На сайт застройщика