Перейти к контенту
Подбор и сравнение проектов домов от застройщиков Московской области
Подборщик домов
Калькулятор сметы
Калькулятор площади
Форум
Блог
Главная
›
Каталог проектов
›
Проект U-044-1K
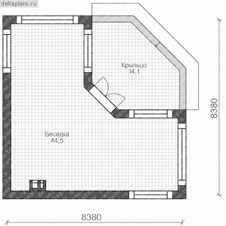
Проект U-044-1K
Застройщик: Юникс-Строй
44.48 м²
1 / 2
🏠
44.48 м²
📐
1 этаж
🧱
Кирпич
Похожие проекты
Похожие по цене
Похожие по площади
Каркасный дом 7x6 Проект "Авантюрин"
2 спальн. · 1 санузл. · 2 этаж
от 1 782 000 ₽
→
Каркасный дом 8x8 Иолит
1 спальн. · 1 санузл. · 1 этаж
от 1 776 000 ₽
→
Проект H-089-1S
1 этаж
от 1 762 756 ₽
→
Проект P-044-1P
1 этаж
от 3 108 000 ₽
→
Барн 3
3 спальн. · 1 санузл. · 1 этаж
от 2 460 000 ₽
→
Проект P-045-1P
1 этаж
от 3 122 000 ₽
→
На сайт застройщика