Перейти к контенту
Подбор и сравнение проектов домов от застройщиков Московской области
Подборщик домов
Калькулятор сметы
Калькулятор площади
Форум
Блог
Главная
›
Каталог проектов
›
Проект U-049-1D
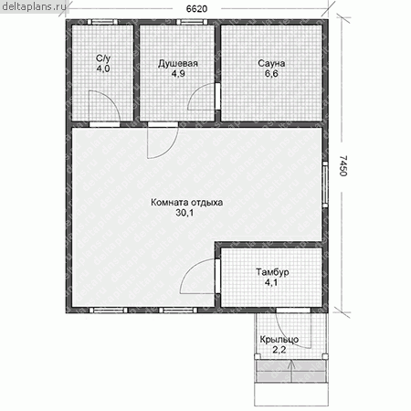
Проект U-049-1D
Застройщик: Юникс-Строй
49.55 м²
1 / 2
🏠
49.55 м²
📐
1 этаж
🧱
Дерево
Похожие проекты
Похожие по цене
Похожие по площади
Дом из рубленного бревна «Котка» | ЭкоТех
3 спальн. · 1 санузл. · 2 этаж
от 7 431 520 ₽
→
Комфорт (11x12)
2 спальн. · 1 санузл. · 1 этаж
от 7 434 000 ₽
→
Проект одноэтажного каркасного дома "Рига"
5 спальн. · 2 этаж
от 7 434 048 ₽
→
Проект C-049-1S
1 этаж
от 969 240 ₽
→
Проект дома «Бьюфорд»
1 спальн. · 1 этаж
от 3 265 200 ₽
→
Проект каркасной бани 9х6, 50 м², 1 этаж «Аляска» - Строительство каркасных домов в Московской области
1 спальн. · 1 санузл. · 1 этаж
от 2 115 000 ₽
→
На сайт застройщика