Перейти к контенту
Подбор и сравнение проектов домов от застройщиков Московской области
Подборщик домов
Калькулятор сметы
Калькулятор площади
Форум
Блог
Главная
›
Каталог проектов
›
Проект U-073-1P
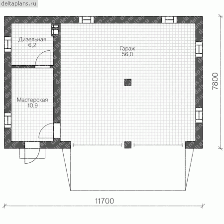
Проект U-073-1P
Застройщик: Юникс-Строй
73.07 м²
1 / 2
🏠
73.07 м²
📐
1 этаж
🧱
Пеноблок
Похожие проекты
Похожие по цене
Похожие по площади
Норд 4
5 спальн. · 3 санузл. · 2 этаж
от 5 115 000 ₽
→
Норд 4
5 спальн. · 3 санузл. · 2 этаж
от 5 115 000 ₽
→
Викинг 3
5 спальн. · 2 санузл. · 2 этаж
от 5 118 000 ₽
→
Проект одноэтажного дома "Ремис" из бруса
4 спальн. · 2 этаж
от 6 658 697 ₽
→
Строительство каркасного дома 8х6 "Люси" под ключ
3 спальн. · 1 санузл. · 2 этаж
от 2 787 000 ₽
→
Строительство каркасного дома 9,5х9 "Ирэн" под ключ
4 спальн. · 1 санузл. · 1 этаж
от 3 647 000 ₽
→
На сайт застройщика