Перейти к контенту
Подбор и сравнение проектов домов от застройщиков Московской области
Подборщик домов
Калькулятор сметы
Калькулятор площади
Форум
Блог
Главная
›
Каталог проектов
›
Проект U-081-1P
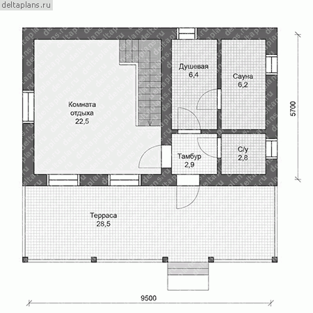
Проект U-081-1P
Застройщик: Юникс-Строй
80.29 м²
1 / 3
🏠
80.29 м²
📐
2 этаж
🧱
Пеноблок
Похожие проекты
Похожие по цене
Похожие по площади
Сварог
2 санузл. · 2 этаж
от 5 619 800 ₽
→
Проект каркасного дома КП-45.2
1 этаж
от 5 625 000 ₽
→
Проект G-080-1P
2 этаж
от 5 612 600 ₽
→
Весна М 5
3 спальн. · 1 санузл. · 1 этаж
от 4 070 000 ₽
→
Весна М 5
3 спальн. · 1 санузл. · 1 этаж
от 4 070 000 ₽
→
Проект G-080-1P
2 этаж
от 5 612 600 ₽
→
На сайт застройщика