Перейти к контенту
Подбор и сравнение проектов домов от застройщиков Московской области
Подборщик домов
Калькулятор сметы
Калькулятор площади
Форум
Блог
Главная
›
Каталог проектов
›
Проект U-098-1P
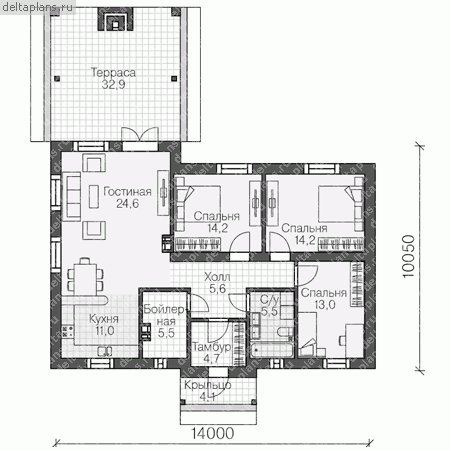
Проект U-098-1P
Застройщик: Юникс-Строй
109.98 м²
1 / 2
🏠
109.98 м²
📐
1 этаж
🧱
Пеноблок
Похожие проекты
Похожие по цене
Похожие по площади
Проект дома Донна
2 этаж
от 7 704 000 ₽
→
Проект К-197 14 на 8, площадью 232 за 7 692 000 руб
6 спальн. · 2 этаж
от 7 692 000 ₽
→
Барин 3 (8.5x12)
2 спальн. · 1 санузл. · 1 этаж
от 7 707 000 ₽
→
Каркасный дом «Колпино
от 10 095 000 ₽
→
Дом из газобетона Проект ГБ-191
3 спальн. · 2 санузл. · 2 этаж
от 4 809 000 ₽
→
Дом из газобетона Проект ГБ-244
3 спальн. · 2 санузл. · 1 этаж
от 4 163 000 ₽
→
На сайт застройщика