Перейти к контенту
Подбор и сравнение проектов домов от застройщиков Московской области
Подборщик домов
Калькулятор сметы
Калькулятор площади
Форум
Блог
Главная
›
Каталог проектов
›
Проект U-118-1P
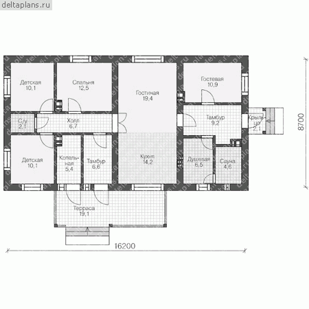
Проект U-118-1P
Застройщик: Юникс-Строй
118.09 м²
1 / 2
🏠
118.09 м²
📐
1 этаж
🧱
Пеноблок
Похожие проекты
Похожие по цене
Похожие по площади
Проект одноэтажного дома "Богородский" из бруса
2 спальн. · 2 этаж
от 8 260 996 ₽
→
Проект V-118-1P
1 этаж
от 8 260 000 ₽
→
Проект К-73 14 на 9, площадью 247 за 8 275 500 руб
4 спальн. · 2 этаж
от 8 275 500 ₽
→
«ТОПДОМ 1.258»
1 этаж
от 10 600 000 ₽
→
Проект одноэтажного дома "Дак" из бруса
4 спальн. · 2 этаж
от 8 702 414 ₽
→
Проект одноэтажного каркасного дома "Датчанин"
4 спальн. · 2 этаж
от 8 977 093 ₽
→
На сайт застройщика