Перейти к контенту
Подбор и сравнение проектов домов от застройщиков Московской области
Подборщик домов
Калькулятор сметы
Калькулятор площади
Форум
Блог
Главная
›
Каталог проектов
›
Проект U-119-1K
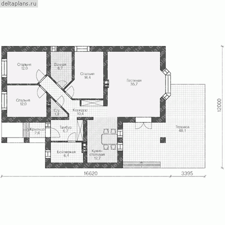
Проект U-119-1K
Застройщик: Юникс-Строй
118.9 м²
1 / 2
🏠
118.9 м²
📐
1 этаж
🧱
Кирпич
Похожие проекты
Похожие по цене
Похожие по площади
Император 5
5 спальн. · 3 санузл. · 2 этаж
от 9 749 000 ₽
→
Император 5
5 спальн. · 3 санузл. · 2 этаж
от 9 749 000 ₽
→
Проект дома D-139-1P
2 этаж
от 9 751 000 ₽
→
Аврора 1
4 спальн. · 2 санузл. · 2 этаж
от 3 669 800 ₽
→
Аврора 1
2 санузл. · 2 этаж
от 6 279 800 ₽
→
Проект дома «Брусника» | ЭкоТех
3 спальн. · 2 санузл. · 1 этаж
от 5 780 000 ₽
→
На сайт застройщика