Перейти к контенту
Подбор и сравнение проектов домов от застройщиков Московской области
Подборщик домов
Калькулятор сметы
Калькулятор площади
Форум
Блог
Главная
›
Каталог проектов
›
Проект U-119-1P
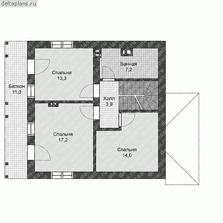
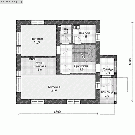
Проект U-119-1P
Застройщик: Юникс-Строй
133.74 м²
1 / 3
🏠
133.74 м²
📐
2 этаж
🧱
Пеноблок
Похожие проекты
Похожие по цене
Похожие по площади
Дома из керамических блоков Шале S под ключ
3 спальн. · 2 санузл. · 2 этаж
от 9 360 400 ₽
→
Проект К-215 9 на 16, площадью 279 за 9 369 000 руб
6 спальн. · 2 этаж
от 9 369 000 ₽
→
Проект одноэтажного коттеджа "Тульский пряник" из газобетона
4 спальн. · 2 этаж
от 9 352 000 ₽
→
Проект одноэтажного коттеджа "Басня КД" из газобетона
4 спальн. · 2 этаж
от 7 940 000 ₽
→
Проект одноэтажного дома "Маргарита 2" из бруса
4 спальн. · 2 этаж
от 9 815 232 ₽
→
Аллебро 140
3 спальн. · 1 этаж
от 6 712 548 ₽
→
На сайт застройщика