Перейти к контенту
Подбор и сравнение проектов домов от застройщиков Московской области
Подборщик домов
Калькулятор сметы
Калькулятор площади
Форум
Блог
Главная
›
Каталог проектов
›
Проект U-130-2P
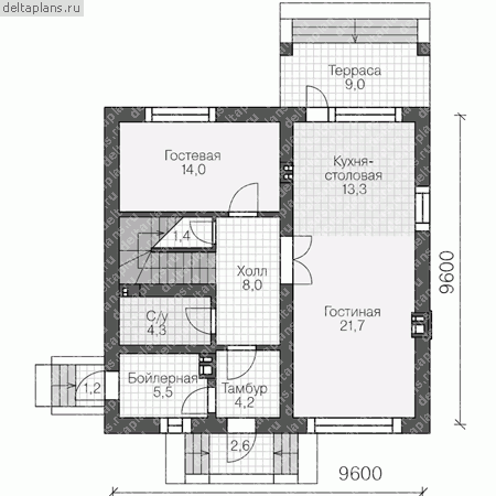
Проект U-130-2P
Застройщик: Юникс-Строй
130.12 м²
1 / 3
🏠
130.12 м²
📐
2 этаж
🧱
Пеноблок
Похожие проекты
Похожие по цене
Похожие по площади
Проект двухэтажного каркасного дома Усадьба XXL под ключ от компании БАКО
4 спальн. · 2 санузл. · 2 этаж
от 9 114 300 ₽
→
Дома из керамических блоков Тетрис M под ключ
4 спальн. · 2 санузл. · 2 этаж
от 9 099 800 ₽
→
Проект дома «Бейкер»
4 спальн. · 2 этаж
от 9 098 934 ₽
→
Проект Y-129-1D
1 этаж
от 19 507 500 ₽
→
Проект дома «Ирвинг»
3 спальн. · 1 этаж
от 11 968 800 ₽
→
Проект одноэтажного дома "Ольга" из бруса
2 спальн. · 2 этаж
от 10 687 305 ₽
→
На сайт застройщика