Перейти к контенту
Подбор и сравнение проектов домов от застройщиков Московской области
Подборщик домов
Калькулятор сметы
Калькулятор площади
Форум
Блог
Главная
›
Каталог проектов
›
Проект U-138-1P
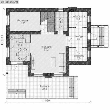
Проект U-138-1P
Застройщик: Юникс-Строй
138.91 м²
1 / 3
🏠
138.91 м²
📐
2 этаж
🧱
Пеноблок
Похожие проекты
Похожие по цене
Похожие по площади
Премьер 5
6 спальн. · 2 санузл. · 2 этаж
от 9 724 000 ₽
→
Проект дома «Ступино» | ЭкоТех
2 спальн. · 1 санузл. · 1 этаж
от 9 723 000 ₽
→
Проект дома «Калуга» | ЭкоТех
3 спальн. · 2 санузл. · 1 этаж
от 9 725 000 ₽
→
Норд 5
5 спальн. · 3 санузл. · 2 этаж
от 5 276 000 ₽
→
Норд 5
5 спальн. · 3 санузл. · 2 этаж
от 5 276 000 ₽
→
Проект одноэтажного каркасного дома "Скиф"
4 спальн. · 2 этаж
от 10 286 966 ₽
→
На сайт застройщика