Перейти к контенту
Подбор и сравнение проектов домов от застройщиков Московской области
Подборщик домов
Калькулятор сметы
Калькулятор площади
Форум
Блог
Главная
›
Каталог проектов
›
Проект U-139-1D
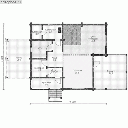
Проект U-139-1D
Застройщик: Юникс-Строй
139.48 м²
1 / 3
🏠
139.48 м²
📐
2 этаж
🧱
Дерево
Похожие проекты
Похожие по цене
Похожие по площади
Проект A-299-1P
2 этаж
от 20 923 000 ₽
→
Проект E-255-1K
3 этаж
от 20 918 200 ₽
→
Проект U-300-1P
2 этаж
от 20 930 000 ₽
→
Проект каркасного дома с мансардой Шале S под ключ от компании БАКО
3 спальн. · 2 санузл. · 2 этаж
от 6 440 700 ₽
→
Дом из клееного бруса «Сергиев посад» | ЭкоТех
3 спальн. · 2 санузл. · 1 этаж
от 11 575 000 ₽
→
Проект одноэтажного коттеджа "Детство" из газобетона
2 спальн. · 2 этаж
от 8 102 000 ₽
→
На сайт застройщика