Перейти к контенту
Подбор и сравнение проектов домов от застройщиков Московской области
Подборщик домов
Калькулятор сметы
Калькулятор площади
Форум
Блог
Главная
›
Каталог проектов
›
Проект U-153-1K
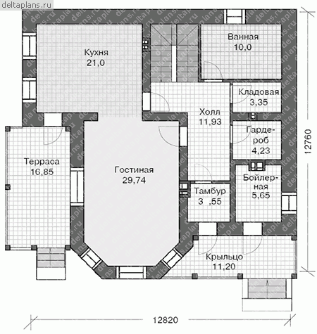
Проект U-153-1K
Застройщик: Юникс-Строй
222.7 м²
1 / 3
🏠
222.7 м²
📐
2 этаж
🧱
Кирпич
Похожие проекты
Похожие по цене
Похожие по площади
Проект трехэтажного коттеджа "Богородитская" из газобетона
2 этаж
от 18 262 000 ₽
→
Проект T-261-2P
2 этаж
от 18 270 000 ₽
→
Двухэтажный коттедж в стиле Хай-Тек «Мирленд»
5 спальн. · 3 санузл. · 2 этаж
от 18 252 000 ₽
→
Проект A-320-1P
2 этаж
от 15 586 900 ₽
→
Проект T-223-1P
2 этаж
от 15 596 000 ₽
→
Проект Y-258-1S
3 этаж
от 4 383 250 ₽
→
На сайт застройщика