Перейти к контенту
Подбор и сравнение проектов домов от застройщиков Московской области
Подборщик домов
Калькулятор сметы
Калькулятор площади
Форум
Блог
Главная
›
Каталог проектов
›
Проект U-157-1P
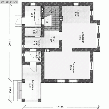
Проект U-157-1P
Застройщик: Юникс-Строй
158.14 м²
1 / 3
🏠
158.14 м²
📐
2 этаж
🧱
Пеноблок
Похожие проекты
Похожие по цене
Похожие по площади
Проект дома из керамоблоков 10х12 ТКБ-152: цена 7380000 руб.
6 спальн. · 2 санузл. · 2 этаж
от 11 071 000 ₽
→
Двухэтажный коттедж «Камея» из бруса | ЭкоТех
4 спальн. · 3 санузл. · 2 этаж
от 11 072 000 ₽
→
Проект одноэтажного дома "Батюшков-2" из бруса
3 спальн. · 2 этаж
от 11 062 564 ₽
→
Проект одноэтажного каркасного дома "Пилигрим"
5 спальн. · 2 этаж
от 11 887 161 ₽
→
Проект одноэтажного дома с террасой Flat-02-158 м² — Домострой
4 спальн. · 2 санузл. · 1 этаж
от 14 167 870 ₽
→
Дом по проекту «ЗС 795-20» - Золотое Сечение
4 спальн. · 2 санузл.
от 19 750 000 ₽
→
На сайт застройщика