Перейти к контенту
Подбор и сравнение проектов домов от застройщиков Московской области
Подборщик домов
Калькулятор сметы
Калькулятор площади
Форум
Блог
Главная
›
Каталог проектов
›
Проект U-169-1P
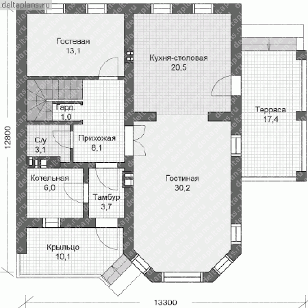
Проект U-169-1P
Застройщик: Юникс-Строй
173.39 м²
1 / 3
🏠
173.39 м²
📐
2 этаж
🧱
Пеноблок
Похожие проекты
Похожие по цене
Похожие по площади
Одноэтажный дом «Фирст» с отдельно стоящей баней
3 спальн. · 3 санузл. · 1 этаж
от 12 138 000 ₽
→
Проект D-165-5P
2 этаж
от 12 145 000 ₽
→
Проект D-174-1P
3 этаж
от 12 149 200 ₽
→
Проект дома «Яблоня» | ЭкоТех
3 спальн. · 2 санузл. · 1 этаж
от 8 161 000 ₽
→
Проект V-172-1K
2 этаж
от 14 222 900 ₽
→
Проект D-165-5P
2 этаж
от 12 145 000 ₽
→
На сайт застройщика