Перейти к контенту
Подбор и сравнение проектов домов от застройщиков Московской области
Подборщик домов
Калькулятор сметы
Калькулятор площади
Форум
Блог
Главная
›
Каталог проектов
›
Проект U-174-1P
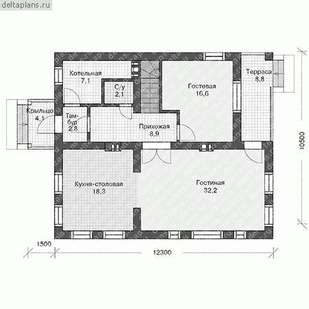
Проект U-174-1P
Застройщик: Юникс-Строй
173.75 м²
1 / 4
🏠
173.75 м²
📐
3 этаж
🧱
Пеноблок
Похожие проекты
Похожие по цене
Похожие по площади
Каркасные дома Стокгольм L под ключ
3 спальн. · 1 санузл. · 1 этаж
от 12 163 800 ₽
→
Проект дома из газоблоков 13х9 ГББ-195: цена 7972000 руб.
5 спальн. · 2 санузл. · 2 этаж
от 12 165 000 ₽
→
Проект дома «Мюнхен» | ЭкоТех
4 спальн. · 2 санузл. · 2 этаж
от 12 166 000 ₽
→
Проект M-173-1P
2 этаж
от 12 173 000 ₽
→
Проект B-173-1P
3 этаж
от 12 174 400 ₽
→
Проект U-171-1K
2 этаж
от 14 232 740 ₽
→
На сайт застройщика