Перейти к контенту
Подбор и сравнение проектов домов от застройщиков Московской области
Подборщик домов
Калькулятор сметы
Калькулятор площади
Форум
Блог
Главная
›
Каталог проектов
›
Проект U-180-1P
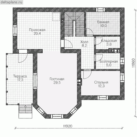
Проект U-180-1P
Застройщик: Юникс-Строй
180.0 м²
1 / 4
🏠
180.0 м²
📐
3 этаж
🧱
Пеноблок
Похожие проекты
Похожие по цене
Похожие по площади
Проект дома из керамоблоков 14х12 ТКБ-196: цена 8528000руб.
6 спальн. · 2 санузл. · 2 этаж
от 12 600 000 ₽
→
ПД - 509 - Строительство домов из Каркаса, СИП, Бруса под ключ
6 спальн. · 3 санузл. · 2 этаж
от 12 600 000 ₽
→
Проект A-180-1P
2 этаж
от 12 600 000 ₽
→
Дом Горки 2 из газобетона: заказать в Москве по низкой цене
4 спальн. · 2 санузл. · 2 этаж
от 9 690 000 ₽
→
Дом Горки 2 из кирпича: заказать в Москве по низкой цене
4 спальн. · 2 санузл. · 2 этаж
от 9 690 000 ₽
→
Проект DOMFIX DUO - двухэтажный дом из газобетона
4 спальн. · 2 этаж
от 9 500 000 ₽
→
На сайт застройщика