Перейти к контенту
Подбор и сравнение проектов домов от застройщиков Московской области
Подборщик домов
Калькулятор сметы
Калькулятор площади
Форум
Блог
Главная
›
Каталог проектов
›
Проект U-181-1P
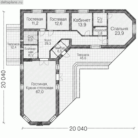
Проект U-181-1P
Застройщик: Юникс-Строй
181.89 м²
1 / 3
🏠
181.89 м²
📐
2 этаж
🧱
Пеноблок
Похожие проекты
Похожие по цене
Похожие по площади
Проект одноэтажного коттеджа "Ладушка КД" из газобетона
3 спальн. · 1 этаж
от 12 732 000 ₽
→
Проект дома T-183-1P
2 этаж
от 12 726 000 ₽
→
Проект дома T-183-2P
2 этаж
от 12 726 000 ₽
→
Проект дома T-183-1P
2 этаж
от 12 726 000 ₽
→
Проект дома T-183-2P
2 этаж
от 12 726 000 ₽
→
Проект двухэтажного каркасного дома "Метида"
6 спальн. · 2 этаж
от 13 944 554 ₽
→
На сайт застройщика