Перейти к контенту
Подбор и сравнение проектов домов от застройщиков Московской области
Подборщик домов
Калькулятор сметы
Калькулятор площади
Форум
Блог
Главная
›
Каталог проектов
›
Проект U-191-1K
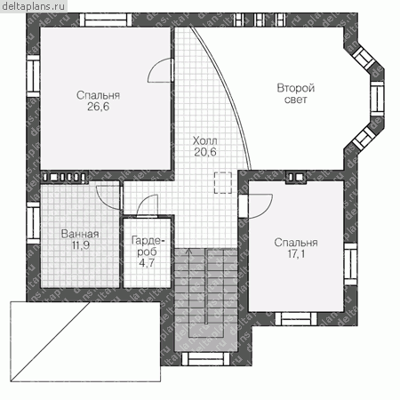
Проект U-191-1K
Застройщик: Юникс-Строй
191.0 м²
1 / 3
🏠
191.0 м²
📐
2 этаж
🧱
Кирпич
Похожие проекты
Похожие по цене
Похожие по площади
Проект двухэтажного каркасного дома "Дуглас"
6 спальн. · 3 этаж
от 15 669 440 ₽
→
Проект M-191-1K
2 этаж
от 15 671 020 ₽
→
Проект дома «Хоукинс»
3 спальн. · 1 этаж
от 15 646 000 ₽
→
Дом Покровское 3 из газобетона: заказать в Москве по низкой цене
2 этаж
от 10 280 000 ₽
→
Дом Покровское 3 из кирпича: заказать в Москве по низкой цене
2 этаж
от 10 280 000 ₽
→
Проект двухэтажного каркасного дома Тетрис XXXL под ключ от компании БАКО
4 спальн. · 2 санузл. · 2 этаж
от 9 022 400 ₽
→
На сайт застройщика