Перейти к контенту
Подбор и сравнение проектов домов от застройщиков Московской области
Подборщик домов
Калькулятор сметы
Калькулятор площади
Форум
Блог
Главная
›
Каталог проектов
›
Проект U-197-1P
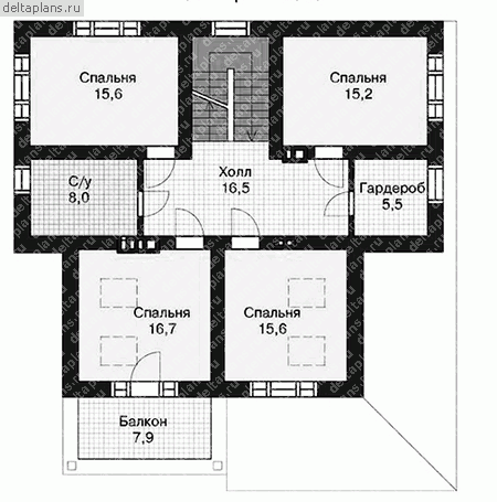
Проект U-197-1P
Застройщик: Юникс-Строй
178.58 м²
1 / 3
🏠
178.58 м²
📐
2 этаж
🧱
Пеноблок
Похожие проекты
Похожие по цене
Похожие по площади
Проект G-178-1P
2 этаж
от 12 498 500 ₽
→
Проект дома из газоблоков 11х12 ГББ-177: цена 9081000 руб.
4 спальн. · 3 санузл. · 2 этаж
от 12 503 000 ₽
→
Проект одноэтажного дома "Калинка" из бруса
4 спальн. · 2 этаж
от 12 496 565 ₽
→
Проект одноэтажного коттеджа "Сотник КД" из газобетона
3 спальн. · 2 этаж
от 12 191 000 ₽
→
Варяг 6
2 этаж
от 6 113 000 ₽
→
Варяг 6
2 этаж
от 6 113 000 ₽
→
На сайт застройщика