Перейти к контенту
Подбор и сравнение проектов домов от застройщиков Московской области
Подборщик домов
Калькулятор сметы
Калькулятор площади
Форум
Блог
Главная
›
Каталог проектов
›
Проект U-213-1K
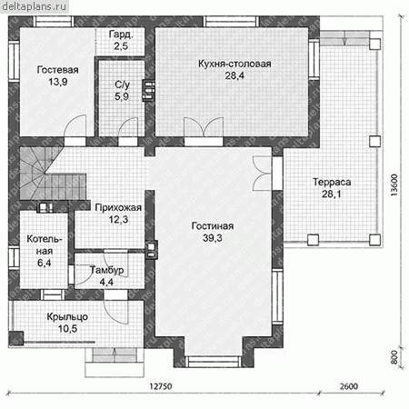
Проект U-213-1K
Застройщик: Юникс-Строй
212.73 м²
1 / 3
🏠
212.73 м²
📐
2 этаж
🧱
Кирпич
Похожие проекты
Похожие по цене
Похожие по площади
Проект дома D-249-1P
2 этаж
от 17 444 000 ₽
→
Проект двухэтажного дома "Шафран" из бруса
5 спальн. · 2 этаж
от 17 448 109 ₽
→
Проект C-213-1K
3 этаж
от 17 438 120 ₽
→
Проект C-213-1K
3 этаж
от 17 438 120 ₽
→
Проект дома «Мунис»
5 спальн. · 2 этаж
от 12 560 000 ₽
→
Проект дома B-213
3 санузл. · 2 этаж
от 14 896 000 ₽
→
На сайт застройщика