Перейти к контенту
Подбор и сравнение проектов домов от застройщиков Московской области
Подборщик домов
Калькулятор сметы
Калькулятор площади
Форум
Блог
Главная
›
Каталог проектов
›
Проект U-224-1K
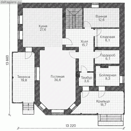
Проект U-224-1K
Застройщик: Юникс-Строй
224.32 м²
1 / 3
🏠
224.32 м²
📐
2 этаж
🧱
Кирпич
Похожие проекты
Похожие по цене
Похожие по площади
А-002
5 спальн. · 2 санузл. · 1 этаж
от 18 400 000 ₽
→
Проект U-225-1K
2 этаж
от 18 387 680 ₽
→
Кирпичный дом С-402 К «Блеск»
5 спальн. · 2 санузл. · 2 этаж
от 18 377 000 ₽
→
Проект G-224-1D
4 санузл. · 2 этаж
от 33 645 000 ₽
→
Проект M-224-1P
2 этаж
от 15 701 000 ₽
→
Проект R-224-1P
2 этаж
от 15 705 200 ₽
→
На сайт застройщика