Перейти к контенту
Подбор и сравнение проектов домов от застройщиков Московской области
Подборщик домов
Калькулятор сметы
Калькулятор площади
Форум
Блог
Главная
›
Каталог проектов
›
Проект U-226-1P
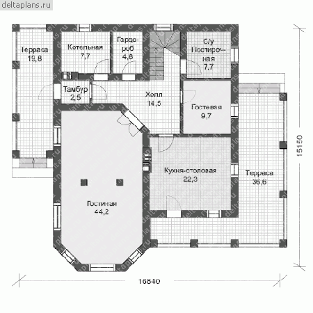
Проект U-226-1P
Застройщик: Юникс-Строй
228.27 м²
1 / 3
🏠
228.27 м²
📐
2 этаж
🧱
Пеноблок
Похожие проекты
Похожие по цене
Похожие по площади
Проект E-196-1K
2 этаж
от 15 973 600 ₽
→
Проект G-301-2P
2 этаж
от 15 995 000 ₽
→
Проект G-228-1P
2 этаж
от 15 960 000 ₽
→
Проект U-228-1D
2 этаж
от 34 239 000 ₽
→
Проект Y-261-1D
2 этаж
от 34 246 500 ₽
→
Проект одноэтажного коттеджа "Норберт" из газобетона
5 спальн. · 2 этаж
от 10 069 000 ₽
→
На сайт застройщика