Перейти к контенту
Подбор и сравнение проектов домов от застройщиков Московской области
Подборщик домов
Калькулятор сметы
Калькулятор площади
Форум
Блог
Главная
›
Каталог проектов
›
Проект U-245-1P
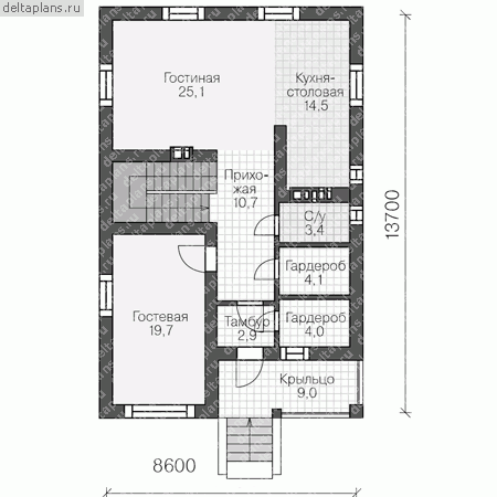
Проект U-245-1P
Застройщик: Юникс-Строй
245.25 м²
1 / 4
🏠
245.25 м²
📐
3 этаж
🧱
Пеноблок
Похожие проекты
Похожие по цене
Похожие по площади
Проект К-229 22 на 20, площадью 428 за 17 166 000 руб
3 спальн. · 1 этаж
от 17 166 000 ₽
→
Коттедж с пятью спальнями «Дрезден»
5 спальн. · 2 санузл. · 2 этаж
от 17 166 000 ₽
→
Проект U-209-1K
2 этаж
от 17 165 060 ₽
→
Проект дома W-282-1P
2 этаж
от 17 154 900 ₽
→
Дом Покровское 2 из газобетона: заказать в Москве по низкой цене
4 спальн. · 2 санузл. · 2 этаж
от 10 440 000 ₽
→
Дом Покровское 2 из кирпича: заказать в Москве по низкой цене
4 спальн. · 2 санузл. · 2 этаж
от 10 440 000 ₽
→
На сайт застройщика