Перейти к контенту
Подбор и сравнение проектов домов от застройщиков Московской области
Подборщик домов
Калькулятор сметы
Калькулятор площади
Форум
Блог
Главная
›
Каталог проектов
›
Проект U-251-1P
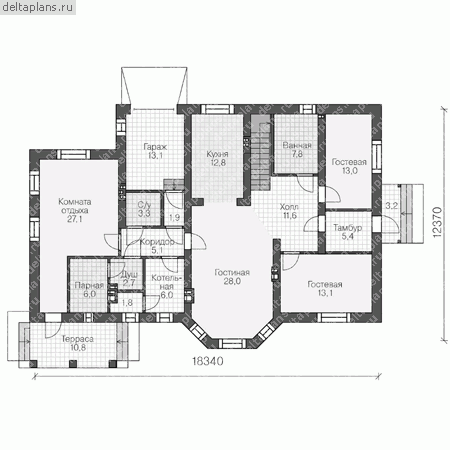
Проект U-251-1P
Застройщик: Юникс-Строй
251.0 м²
1 / 3
🏠
251.0 м²
📐
2 этаж
🧱
Пеноблок
Похожие проекты
Похожие по цене
Похожие по площади
Проект C-234-1P
3 этаж
от 17 570 000 ₽
→
Проект одноэтажного коттеджа "Натали" из газобетона
5 спальн. · 2 этаж
от 17 571 000 ₽
→
Проект U-250-1P
2 этаж
от 17 565 100 ₽
→
Дом 3 спальни с сауной №377
2 этаж
от 17 247 300 ₽
→
Проект дома №377
2 этаж
от 17 247 300 ₽
→
Проект C-234-1P
3 этаж
от 17 570 000 ₽
→
На сайт застройщика