Перейти к контенту
Подбор и сравнение проектов домов от застройщиков Московской области
Подборщик домов
Калькулятор сметы
Калькулятор площади
Форум
Блог
Главная
›
Каталог проектов
›
Проект U-252-1K
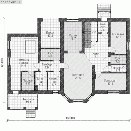
Проект U-252-1K
Застройщик: Юникс-Строй
252.47 м²
1 / 4
🏠
252.47 м²
📐
3 этаж
🧱
Кирпич
Похожие проекты
Похожие по цене
Похожие по площади
Проект «Dorf»
от 20 700 000 ₽
→
Проект V-252-1K
2 этаж
от 20 688 600 ₽
→
Проект U-253-1K
2 этаж
от 20 719 760 ₽
→
Проект V-252-1D
3 этаж
от 37 864 500 ₽
→
Проект A-365-1P
2 этаж
от 17 682 000 ₽
→
Проект V-252-1K
2 этаж
от 20 688 600 ₽
→
На сайт застройщика