Перейти к контенту
Подбор и сравнение проектов домов от застройщиков Московской области
Подборщик домов
Калькулятор сметы
Калькулятор площади
Форум
Блог
Главная
›
Каталог проектов
›
Проект U-260-1P
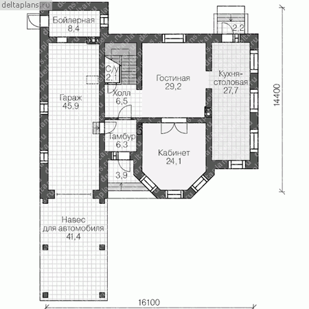
Проект U-260-1P
Застройщик: Юникс-Строй
260.0 м²
1 / 4
🏠
260.0 м²
📐
3 этаж
🧱
Пеноблок
Похожие проекты
Похожие по цене
Похожие по площади
Проект V-260-1P
2 этаж
от 18 200 000 ₽
→
Проект дома D-260-1P
3 этаж
от 18 200 000 ₽
→
Проект A-364-1P
2 этаж
от 18 199 300 ₽
→
Проект двухэтажного коттеджа "Баварский" из газобетона
4 спальн. · 2 этаж
от 11 228 000 ₽
→
Каркасный дом «Кингисепп
от 16 005 000 ₽
→
Проект К-227 15 на 9, площадью 260 за 8 741 250 руб
4 спальн. · 2 этаж
от 8 741 250 ₽
→
На сайт застройщика