Перейти к контенту
Подбор и сравнение проектов домов от застройщиков Московской области
Подборщик домов
Калькулятор сметы
Калькулятор площади
Форум
Блог
Главная
›
Каталог проектов
›
Проект U-264-1P
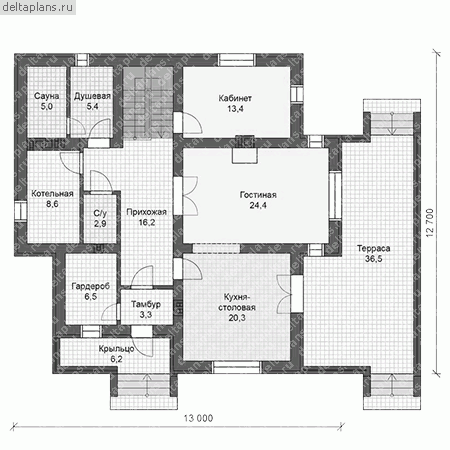
Проект U-264-1P
Застройщик: Юникс-Строй
213.01 м²
1 / 3
🏠
213.01 м²
📐
2 этаж
🧱
Пеноблок
Похожие проекты
Похожие по цене
Похожие по площади
Проект U-213-1P
2 этаж
от 14 910 700 ₽
→
Проект V-213-1P
2 этаж
от 14 910 000 ₽
→
Проект двухэтажного коттеджа "Дачия" из газобетона
2 спальн. · 2 этаж
от 14 915 000 ₽
→
Проект U-213-1P
2 этаж
от 14 910 700 ₽
→
Двухэтажный 4 спальни №360
2 этаж
от 10 940 500 ₽
→
Двухэтажный дом 4 спальни №360
2 этаж
от 10 940 500 ₽
→
На сайт застройщика