Перейти к контенту
Подбор и сравнение проектов домов от застройщиков Московской области
Подборщик домов
Калькулятор сметы
Калькулятор площади
Форум
Блог
Главная
›
Каталог проектов
›
Проект U-268-1P
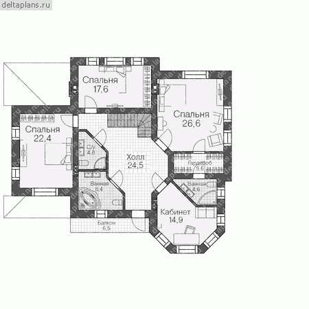
Проект U-268-1P
Застройщик: Юникс-Строй
268.51 м²
1 / 3
🏠
268.51 м²
📐
2 этаж
🧱
Пеноблок
Похожие проекты
Похожие по цене
Похожие по площади
Проект U-269-1P
2 этаж
от 18 804 100 ₽
→
Проект дома W-157-1P
3 этаж
от 18 816 000 ₽
→
Кирпичный дом С-421 К «Онегино»
4 спальн. · 2 санузл. · 2 этаж
от 18 775 000 ₽
→
Проект U-269-1P
2 этаж
от 18 804 100 ₽
→
Двухэтажная вилла со встроенным гаражом «Люптон»
4 спальн. · 4 санузл. · 2 этаж
от 16 122 000 ₽
→
Проект двухэтажного дома "Нонейм" из бруса
4 спальн. · 2 этаж
от 16 760 758 ₽
→
На сайт застройщика