Перейти к контенту
Подбор и сравнение проектов домов от застройщиков Московской области
Подборщик домов
Калькулятор сметы
Калькулятор площади
Форум
Блог
Главная
›
Каталог проектов
›
Проект U-268-2P
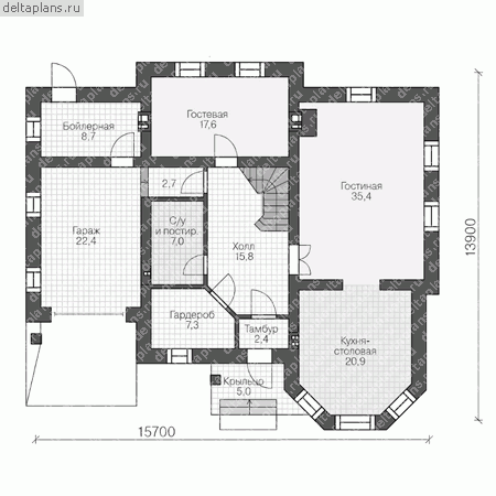
Проект U-268-2P
Застройщик: Юникс-Строй
270.07 м²
1 / 3
🏠
270.07 м²
📐
2 этаж
🧱
Пеноблок
Похожие проекты
Похожие по цене
Похожие по площади
Современный дом с навесом для автомобиля «Мердорф»
4 спальн. · 4 санузл. · 2 этаж
от 18 900 000 ₽
→
Проект U-230-1K
2 этаж
от 18 886 240 ₽
→
Дом по проекту «Мельдорф» - Золотое Сечение
3 спальн. · 2 санузл.
от 18 875 000 ₽
→
Каркасный дом «Рощино
от 18 840 000 ₽
→
Дом из газобетона Проект ГБ-224
3 спальн. · 2 санузл. · 2 этаж
от 8 899 000 ₽
→
Проект дома «Байкал» | ЭкоТех
3 спальн. · 2 санузл. · 2 этаж
от 13 795 000 ₽
→
На сайт застройщика