Перейти к контенту
Подбор и сравнение проектов домов от застройщиков Московской области
Подборщик домов
Калькулятор сметы
Калькулятор площади
Форум
Блог
Главная
›
Каталог проектов
›
Проект U-276-1P
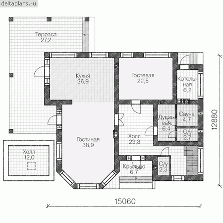
Проект U-276-1P
Застройщик: Юникс-Строй
276.67 м²
1 / 3
🏠
276.67 м²
📐
2 этаж
🧱
Пеноблок
Похожие проекты
Похожие по цене
Похожие по площади
Проект «Goodland»
4 спальн. · 4 санузл.
от 19 370 000 ₽
→
Проект «Goodland»
4 спальн. · 4 санузл.
от 19 370 000 ₽
→
Проект «Goodland»
4 спальн. · 4 санузл. · 2 этаж
от 19 370 000 ₽
→
Проект A-419-1P
3 этаж
от 19 362 000 ₽
→
Боярин 5
5 спальн. · 2 санузл. · 2 этаж
от 9 635 000 ₽
→
Боярин 5
5 спальн. · 2 санузл. · 2 этаж
от 9 635 000 ₽
→
На сайт застройщика