Перейти к контенту
Подбор и сравнение проектов домов от застройщиков Московской области
Подборщик домов
Калькулятор сметы
Калькулятор площади
Форум
Блог
Главная
›
Каталог проектов
›
Проект U-288-1P
Проект U-288-1P
Застройщик: Юникс-Строй
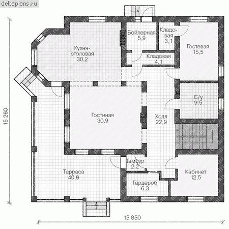
288.67 м²
1 / 3
🏠
288.67 м²
📐
2 этаж
🧱
Пеноблок
Похожие проекты
Похожие по цене
Похожие по площади
Проект U-288-2P
2 этаж
от 20 202 000 ₽
→
Проект двухэтажного коттеджа "Парамоново" из бруса
6 спальн. · 3 этаж
от 20 215 146 ₽
→
Проект одноэтажного дома "Боровское" из бруса
4 спальн. · 2 этаж
от 20 217 178 ₽
→
Проект F-378-1K
3 этаж
от 23 668 480 ₽
→
Проект U-288-2P
2 этаж
от 20 202 000 ₽
→
Проект U-288-1K
3 этаж
от 23 654 540 ₽
→
На сайт застройщика