Перейти к контенту
Подбор и сравнение проектов домов от застройщиков Московской области
Подборщик домов
Калькулятор сметы
Калькулятор площади
Форум
Блог
Главная
›
Каталог проектов
›
Проект U-290-1P
Проект U-290-1P
Застройщик: Юникс-Строй
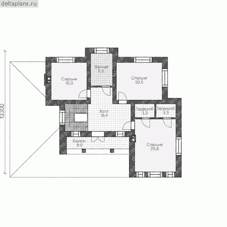
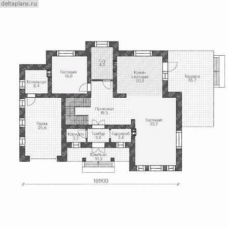
290.63 м²
1 / 3
🏠
290.63 м²
📐
2 этаж
🧱
Пеноблок
Похожие проекты
Похожие по цене
Похожие по площади
Дом с пристроенным навесом на две машины «Хоффленд»
3 спальн. · 3 санузл. · 2 этаж
от 20 340 000 ₽
→
Проект T-371-1P
3 этаж
от 20 349 000 ₽
→
Проект одноэтажного дома "Гималия" из бруса
6 спальн. · 2 этаж
от 20 332 919 ₽
→
Проект T-371-1P
3 этаж
от 20 349 000 ₽
→
Проект T-287-1P
2 этаж
от 20 360 900 ₽
→
Проект U-292-1P
3 этаж
от 20 364 400 ₽
→
На сайт застройщика