Перейти к контенту
Подбор и сравнение проектов домов от застройщиков Московской области
Подборщик домов
Калькулятор сметы
Калькулятор площади
Форум
Блог
Главная
›
Каталог проектов
›
Проект U-294-1K
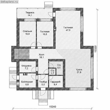
Проект U-294-1K
Застройщик: Юникс-Строй
260.09 м²
1 / 3
🏠
260.09 м²
📐
2 этаж
🧱
Кирпич
Похожие проекты
Похожие по цене
Похожие по площади
Проект V-260-1K
2 этаж
от 21 324 920 ₽
→
Проект M-142-1D
2 этаж
от 21 330 000 ₽
→
Проект U-141-1D
2 этаж
от 21 331 500 ₽
→
Проект V-260-1K
2 этаж
от 21 324 920 ₽
→
Проект двухэтажного коттеджа "Баварский" из газобетона
4 спальн. · 2 этаж
от 11 228 000 ₽
→
Каркасный дом «Кингисепп
от 16 005 000 ₽
→
На сайт застройщика