Перейти к контенту
Подбор и сравнение проектов домов от застройщиков Московской области
Подборщик домов
Калькулятор сметы
Калькулятор площади
Форум
Блог
Главная
›
Каталог проектов
›
Проект U-302-1K
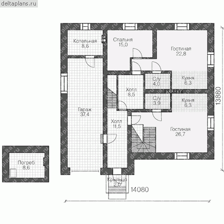
Проект U-302-1K
Застройщик: Юникс-Строй
302.37 м²
1 / 3
🏠
302.37 м²
📐
2 этаж
🧱
Кирпич
Похожие проекты
Похожие по цене
Похожие по площади
Проект E-303-1K
2 этаж
от 24 788 600 ₽
→
Проект B-302-2K
3 этаж
от 24 780 400 ₽
→
Проект «Dallas»
3 спальн. · 3 санузл. · 1 этаж
от 24 822 000 ₽
→
Проект дома E-301-1P
2 этаж
от 21 170 100 ₽
→
Проект E-303-1K
2 этаж
от 24 788 600 ₽
→
Проект B-302-2K
3 этаж
от 24 780 400 ₽
→
На сайт застройщика