Перейти к контенту
Подбор и сравнение проектов домов от застройщиков Московской области
Подборщик домов
Калькулятор сметы
Калькулятор площади
Форум
Блог
Главная
›
Каталог проектов
›
Проект U-354-1P
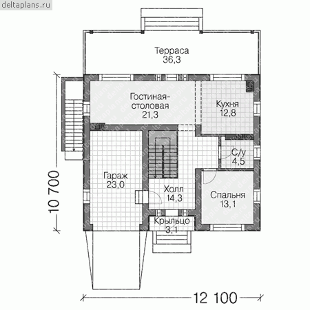
Проект U-354-1P
Застройщик: Юникс-Строй
354.91 м²
1 / 5
🏠
354.91 м²
📐
3 этаж
🧱
Пеноблок
Похожие проекты
Похожие по цене
Похожие по площади
Проект G-303-1K
2 этаж
от 24 846 000 ₽
→
Проект W-303-1K
2 этаж
от 24 846 000 ₽
→
Проект M-303-1K
2 этаж
от 24 837 800 ₽
→
Проект R-355-1K
3 этаж
от 29 110 000 ₽
→
Проект «Porterville»
4 спальн. · 5 санузл.
от 17 800 000 ₽
→
Проект дома «Chester»
4 спальн. · 3 санузл.
от 17 765 000 ₽
→
На сайт застройщика