Перейти к контенту
Подбор и сравнение проектов домов от застройщиков Московской области
Подборщик домов
Калькулятор сметы
Калькулятор площади
Форум
Блог
Главная
›
Каталог проектов
›
Проект U-362-1P
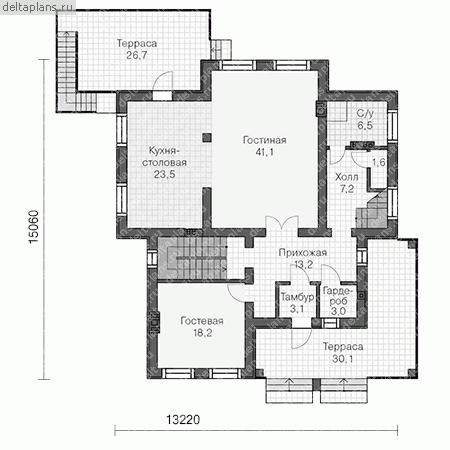
Проект U-362-1P
Застройщик: Юникс-Строй
362.0 м²
1 / 4
🏠
362.0 м²
📐
3 этаж
🧱
Пеноблок
Похожие проекты
Похожие по цене
Похожие по площади
Проект A-169-1D
2 этаж
от 25 350 000 ₽
→
Проект U-361-1P
3 этаж
от 25 321 800 ₽
→
Проект дома M-362-1P
3 этаж
от 25 319 000 ₽
→
Проект O-329-1K
3 этаж
от 29 692 200 ₽
→
Проект U-361-1P
3 этаж
от 25 321 800 ₽
→
Проект дома M-362-1P
3 этаж
от 25 319 000 ₽
→
На сайт застройщика